1 bed, The Picture House - £1,775 pcm
- 1 bedroom Apartment
- Available 30th January
- EPC: B
- Pet Friendly
- Onsite Gym
- Residents' Lounge
- Private Dining Room
- Co-working Space
- Games Room
- Bike Storage
- Save this property
- About this development
Our one bed apartments at The Picture House come in a range of layouts, to suit each and every individual.
The apartments are finished to a high standard.
They feature a well-arranged living space, bedrooms with built-in storage, a luxurious bathroom and a modern kitchen with integrated Zanussi appliances including a dishwasher, electric oven, induction hob, fridge/freezer and a washer/dryer.
Most apartments feature a generous balcony giving you the perfect view over your new city.
- Residents lounge, kitchen and private dining area
- Top spec gym
- TV and games room
- On-site resident services team
- Yoga studio
- Workspace
- Secure bike storage
Furnished apartments available on request.
All photos and/or images used are for illustrative purposes; actual room layouts, sizes and colours may vary.
Arrange a viewing
Specification
- Contemporary fitted kitchen with hi gloss units and Bosch Appliances included
- Stylish bathroom with high quality fixtures and Grohe fittings
- Light wood effect flooring in living areas
- High quality carpeting in the bedrooms
- Floor to ceiling windows
- Video entry system
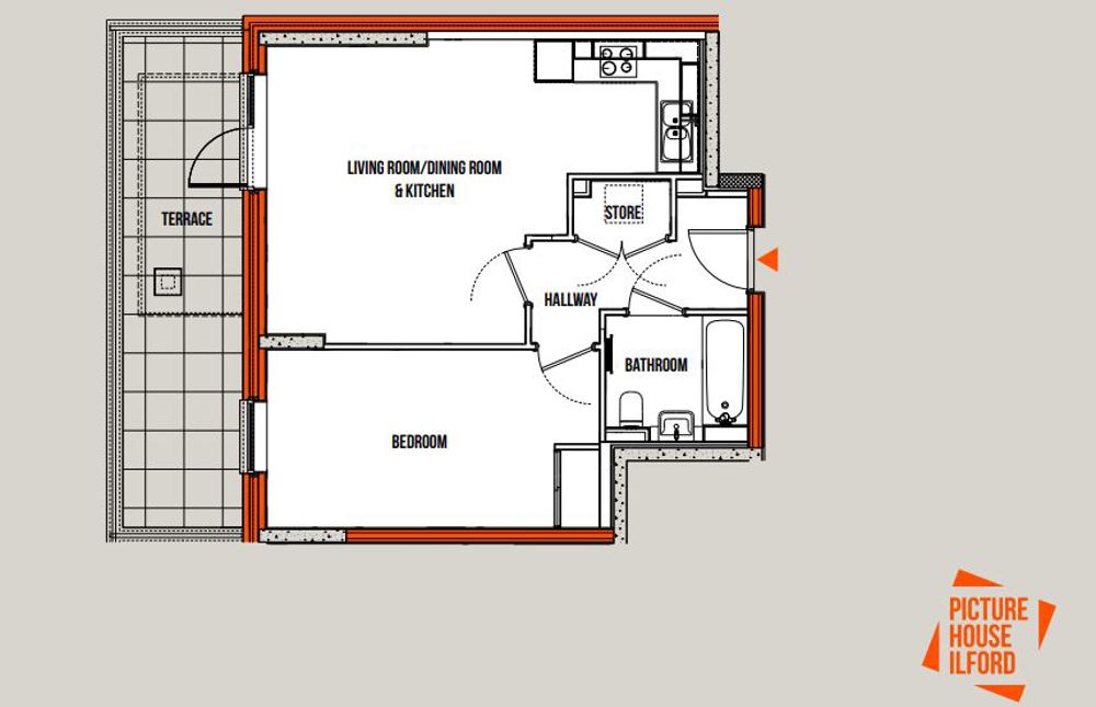
Floorplan
Local Area
The Picture House is a 4-minute walk from Ilford station with trains to Stratford in 11-minutes and to Liverpool Street in 17, whether for work or fun we make staying connected easy.
Sainsbury's is a 4-minute walk away, home delivery can be a thing of the past, with this convenience only a stone's throw away.
Ilford has so much to offer with great restaurants and shopping, why not book a viewing and come and explore.

